Продается дом, 120 кв.м., /2 эт

Обзор
Стоимость
12 500 000
Комнат в доме3
Кадастровый номер участка23:41:1009003:506
Тип строенияДом
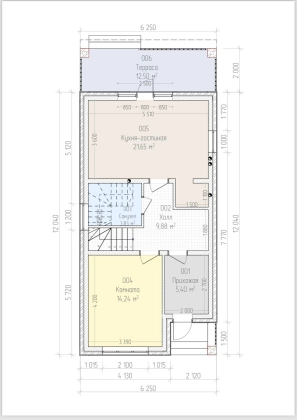
Площадь, кв.м.120
Площадь участка, сот3.18
Этажность2
Материал стен Кирпич
Адрес
Населенный пунктГорячий Ключ
Улицаулица Гоголя
В избранное ✨ Купи дом и получи баню в подарок:

✨ Купи дом и получи баню в подарок:
Эксклюзивное предложение на рынке недвижимости Горячего Ключа! ✨

🏠 Двухэтажный шедевр ждет своего владельца!

🌟 Особенности:
- Общая площадь: 110 кв. м + терраса 12,5 кв. м для уютных вечеров.
- Участок земли: 3,2 сотки — идеальное пространство для отдыха и развлечений.
- Монолитный фундамент с блоками ФБС для усиленной прочности.
- Энергоэффективные стены из керамзитоблока с утеплением минеральной ватой и лицевым кирпичом.
- Монолитные плиты перекрытия и крыша из металлочерепицы с доступом на чердак.

🌄 Комфорт:
- Роскошный балкон на 2 этаже в спальной зоне.
- Панорамные окна, которые наполнят дом естественным светом.
- Современное отопление с теплыми полами, котлом и радиаторами.
- Предчистовая отделка стен, готовые для вашего дизайна.
- Электропроводка и стяжка полов уже выполнены.

🏙️ Удобства:
- Централизованные газ, электричество, водоснабжение и канализация.
- Персональное парковочное место с современными роллетными воротами.
- Огороженный участок с ландшафтным дизайном и аккуратным газоном.
- Уютная терраса с навесом для вашего отдыха.

📍 Местоположение:
- Сердце административного центра города Горячий Ключ.
- В шаговой доступности от садиков, торговых центров, а также школ.
- Уединенное расположение с тихой улицей и быстрым доступом к асфальтированной дороге.

🎁 Акция:
- При покупке этого дома вы получите баню в подарок!
- Заметьте: ни один застройщик в городе не предложит вам баню, качественно устроенный газон и террасу с навесом в качестве комплимента. 

📞 Свяжитесь с нами прямо сейчас. Мы подробно ответим на все вопросы и согласуем дату просмотра.

Расположение

Важно! На карте не всегда указано точное местоположение. Более точную информацию можно узнать у менеджера, разместившего объект