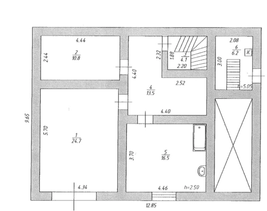
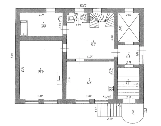
Продается дом, 250 кв.м., /3 эт
Обзор№ - 653
| Стоимость | 20 000 000  | 
|---|---|
| Комнат в доме | 7 | 
| Категория земли | ИЖС | 
| Право собственности | Собственник | 
| Тип парковки | Гараж | 
| Тип строения | Дом | 
| Площадь, кв.м. | 250 | 
| Площадь участка, сот | 11.96 | 
| Этажность | 3 | 
| Материал стен | Кирпич | 
Адрес
| Населенный пункт | Горячий Ключ | 
|---|---|
| Улица | улица Щорса | 
Дом с ремонтом














