Продается 2 этажный дом общей площадью 124 кв.м. расположенный на участке 4 сотки.
Планировка дома включает в себя:
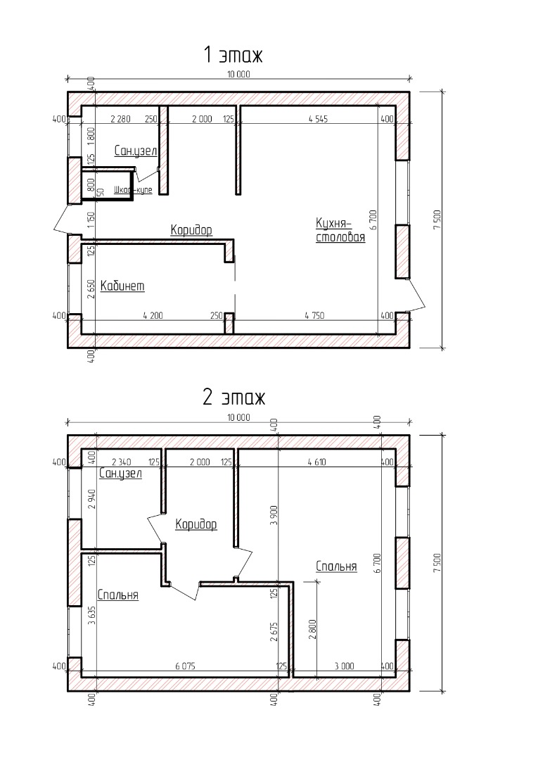
1й этаж: 1 спальня, кухня- гостиная с выходом на террасу, с которой открывается прекрасный вид на участок. совмещенный санузел
2й этаж: 3спальни, совмещенный сан узел, прихожая;
Дом находится в стадии предчистовой / черновой отделки.
Коммуникации центральные. Сдача дома в эксплуатацию запланировано на 1 квартал 2022.
Дом расположен в мкр. Дубрава, тихий экологически чистый район с развитой инфраструктурой, вдали от суеты , вблизи леса!
Способы оплаты: наличные, ипотека, Юридическая проверка объекта.
Никакой комиссии при покупке!
Звоните прямо сейчас



























